1. 서 론
2. 연구의 방법 및 범위
3. 기존 문헌 분석
4. 상가 열부하 모델 설정 프로세스
4.1 상가 열부하 모델 모듈 결정을 위한 법규 검토
4.2 부위별 디테일 표준 치수 검토
5. 상가 열부하 모델과 외피 성능
6. 결 론
1. 서 론
건축물의 실내 거주 환경을 쾌적한 상태로 유지하기 위해 에너지가 소모되어야하고, 이 에너지의 소모를 최소화하기 위해 건축적 방법과 설비적 방법이 융합되어야한다. 설비 분야의 에너지절약기법은 여러 가지가 있는데 적정 용량의 열원 설비를 선정하는 것을 그 중 하나로 볼 수 있다1).
열원 설비의 용량이 과대 산정되면 초기 투자비가 증가하고, 부분 부하 특성에 따라 냉난방 에너지 소요량이 증가될 수 있다. 또한 기존 연구에 따르면 외피의 열적 성능이 향상됨에 따라 냉난방 부하가 감소하고 특히 최대 냉난방 부하에서 그 감소량이 커질 수 있기 때문에 열원설비의 적정 용량을 산정하는 것은 건축물의 에너지 절약을 위해 중요할 수 있다2,3).
중대형 비주거 건물의 경우 신축 시 관련 전문가에 의해 해당 건물에 대한 이슈가 고려된 부하계산을 통해 장비용량을 계산하는 것이 일반적이지만 소규모의 상가 공간들의 경우 KS C 9306 (에어컨디셔너)에서 제시하는 면적별 냉방능력에 따라 그 용량을 산정하는 경우가 많다. 하지만, KS C 9306 내의 열원 설비 용량 산정법은 1998년 작성되었고 1965년 출판된 일본의 공기조화위생공학회의 냉난방부하 계산방법을 기초로 하여 간이 작성된 결과이기 때문에 현재 건물에 적정하다고 보기 어렵다4). 특히, 그 부하계산을 실시한 대상 모델의 면적, 층고, 창면적비 등에 소규모 상가 공간에 대한 건축 계획적 고려가 부재해보이는 문제가 있다. 소규모 상가 공간을 위한 열원 설비 용량을 산정하기 위해서는 아래와 같은 사항을 고려할 필요가 있는 것으로 보인다1).
첫째, 소규모 상가의 경우 건물의 신축 후 공간을 모듈 단위로 분할하여 임대하는 경우가 많아 동일 공간에서 용도가 변경되며 리모델링이나 열원 설비 교체가 빈번하게 이루어 질 수 있다. 이에 본 소규모 상가 공간을 위한 열원 설비 용량 산정을 위해서는 건물 단위의 부하계산보다는 공간 단위의 부하계산을 실시할 필요가 있다.
둘째, 소규모 상가의 경우 일반 비주거 건물과는 달리 공간 단위로 거주자가 변경되며 리모델링이 실시될 수 있는 그 특성상 표준 공간 모델에 대한 연구가 우선적으로 필요하다. 사실, 표준 모델이나 열원 설비 적정용량 산정에 대한 연구는 소규모 상가에 관련된 연구보다는 주택에 대한 연구나 건물 단위의 연구가 많다5,6). 또한, 일반적으로 냉난방 부하 계산을 위한 모델은 다른 부하계산 관련 연구에서 사용한 모델을 그대로 가져오거나, 실제 건물 모델을 이용하는 경우가 많아 소규모 상가 공간 부하 계산에 앞서 열부하 산정용 공간 모델에 대한 연구는 선행되어야할 것으로 판단된다.
본 연구는 소규모 상가 공간의 적정 열원 설비 용량을 산정하기 위한 선행 연구로, 후속 단계의 연구를 위해 열부하 산정용 소규모 상가 공간 모델을 제안하는 것을 목적으로 하고 다음과 같이 연구를 진행하였다.
2. 연구의 방법 및 범위
기존 연구는 열부하 산정을 위한 별도의 모델 계획이라기 보다는 표준 모델 분석에 관한 연구로 볼 수 있다. 이는 건축물 용도 군(공동주택, 업무용건축물 등)을 중심으로 표준모델을 설정하는 것이 대다수로 소규모 상가 공간에 대해 실제 건축 계획적 방법을 적용하여 모델을 설정한 사례는 드문 편이다7,8,9,10,11). 열부하 산정용 소규모 상가 공간 모델(이하 상가 열부하 모델) 계획을 위해서는 일반적인 건물 단위 표준 모델 산정과는 달리 단위 공간 모듈 산정을 위한 각종 법규, 시공 디테일 등 공간에 대한 조사 및 분석이 필요하다. 이는 기존에 연구된 표준 모델 산정 방법과는 다를 수 있으며 본 연구의 한계로 지적될 수 있다.
본 연구에서는 상가 열부하 모델을 설정하기 위하여 다음과 같은 프로세스로 연구를 수행하였다.
1) 상가 열부하 모델 설정 방법론 구축을 위한 기존 문헌 분석
2) 관련 법규 검토 등을 통한 소규모 상가 모듈 설정
3) 부위별 디테일 조사를 통한 소규모 상가 단위 공간 결정
4) 소규모 상가의 외피 성능 조사 및 설정
5) 소규모 상가의 냉방부하가 달라질 수 있는 향, 위치 등의 변수 설정
3. 기존 문헌 분석
기존 문헌의 분석 결과, 표준 모델 구축 방법은 아래의 3가지로 구분되는 것을 확인 할 수 있었다.
1) 전문가적 경험을 바탕으로 결정하는 방법7)
3) 통계데이터와 전문가의 경험을 바탕으로 결정하는 방법10,11)
위에 따르면, 건물 단위의 표준 모델은 건물의 일반 정보, 외피정보, 설비 정보, 운영정보를 포함하여 설정하는 것이 일반적이었고 이를 요약하면 아래와 같다.
1) 일반정보 : 건물 형태, 규모, 용도
2) 외피정보 : 벽체의 구성, 벽체의 열관류율, 창호의 유형 및 물성
3) 설비정보 : 냉난방기기 종류, 설정온도 및 스케줄, 급탕량 및 스케줄, 환기방식 등
4) 운영정보 : 재실 밀도, 스케줄, 조명 밀도, 기기 밀도 등
위의 정보는 전문가적 경험이나 통계데이터로 결정하는 방법 둘 중 하나만으로도 정의가 가능하지만 둘을 조합하는 방법이 적절하며 통계데이터가 없는 경우 전문가적 경험을 이용하는 경우가 일반적인 것으로 분석되었다.
본 연구는 적정한 열원설비 용량 산정을 위한 상가 열부하 모델을 제안하는 것을 목적으로 하며 소규모 상가의 형태나 규모에 대한 정보가 충분하지 않은 이유로 법규 자료를 이용한 전문가 자문을 통해 형태와 규모를 결정하였다. 벽체의 열관류율 및 창호의 유형 등은 통계 자료와 법규 기준 분석을 통해 도출하였다1. 설비정보와 운영정보에 관련된 내용은 실제 열부하 계산에 필요한 정보이기때문에 본 모델 제안 연구에서는 제외하였다.
4. 상가 열부하 모델 설정 프로세스
4.1 상가 열부하 모델 모듈 결정을 위한 법규 검토
상가 열부하 모델의 형태를 결정하기 위해 먼저 건물 설계 시 필수적으로 반영해야하는 각종 관계 법규에 대한 조사를 실시하였다. 실제 건물을 설계할 때 검토해야하는 법규 및 기준은 지구단위계획의 지침부터 지방자치단체의 조례까지 다양하지만 본 연구는 단위 공간에 관련된 것이기 때문에 주차장법, 장애인 관련 법 등 내부 공간의 볼륨과 밀접한 관련이 있는 법령을 위주로 분석을 실시하였다.
(1) 주차장법과 기둥
단위 공간의 형태를 결정하는 요소 중의 하나는 기둥이다. 지하주차장의 기둥은 지상에 위치한 상가의 기둥과 연결되며 이 기둥이 주차 통로의 중간에 배치되거나 주차구획이 비효율적으로 계획되면 일반적인 상가 모델이라 보기 어렵다.
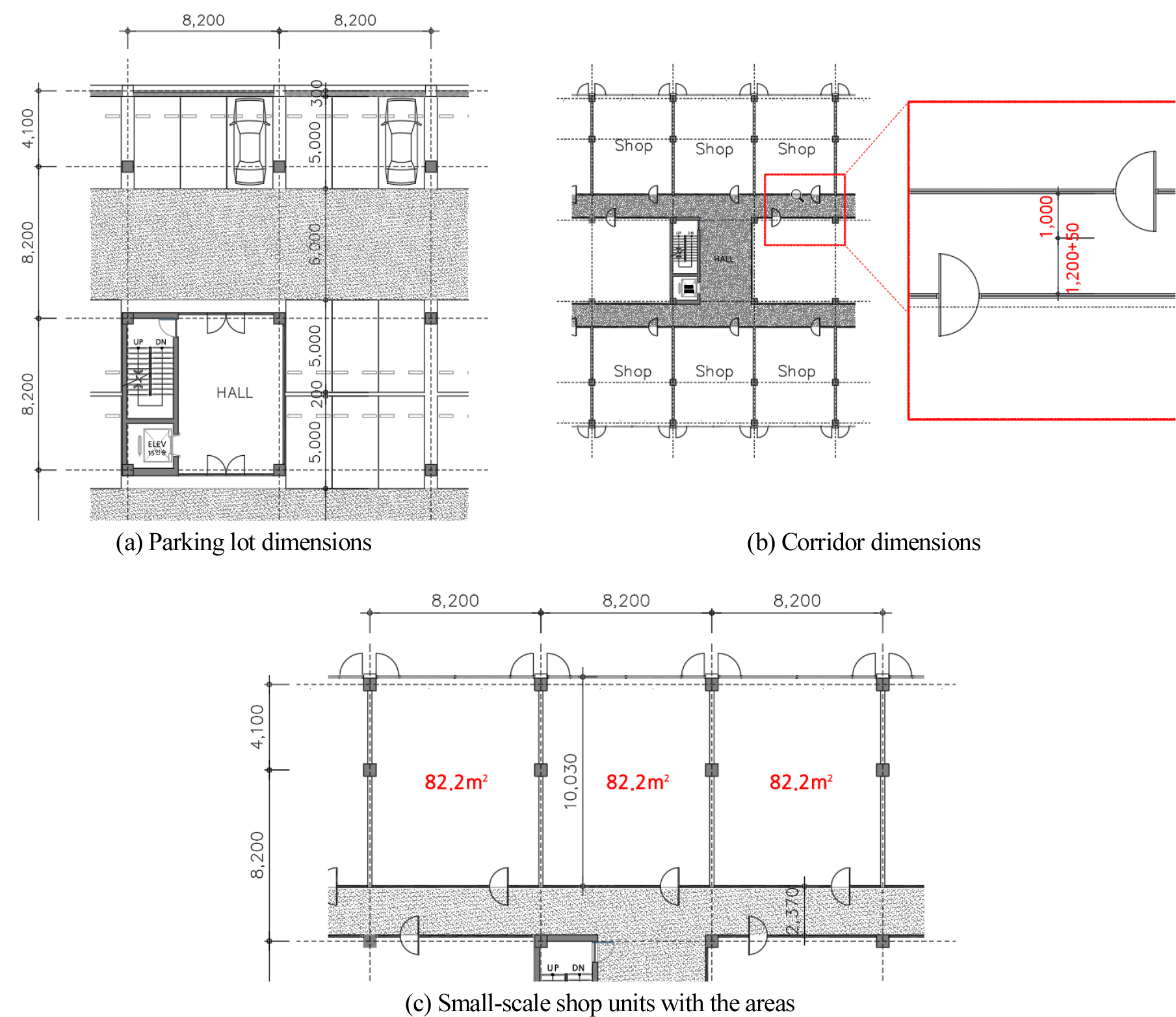
신축 건물의 설계시 의무 주차대수를 포함하는 주차장을 함께 계획해야하며, 이 주차장은 경제적 요인에 의해 지하에 위치하게 되는 경우가 많다. 의무 주차대수는 지자체별 조례에 따르며 서울시의 경우 상가 용도 건물 연면적 134 m2당 1대로 규정하고 있다. 주차구획은 주차장법 시행규칙에 따라 일반형의 경우 1대당 2.5 m × 5.0 m 이상이어야 한다. 본 표준 상가 모델의 지하주차장은 주차구획을 가장 많이 배치할 수 있는 직각 주차 방식을 채용하였다.
철근콘크리트 구조의 합리적인 경간 범위는 6 ~ 9 m 정도로 알려져 있고 주차구획 3대까지 배치가 가능하다. 기존 설계 건물 사례 및 구조 전문가의 조언에 따라 8 m 스팬의 기둥 경간을 가진 5층 규모 근린생활시설의 기둥의 사이즈를 550 mm으로 하고, 지하주차장의 경우 600 mm으로 하였다(Fig. 1 참조).
(2) 장애인법과 통행
장애인·노인·임산부 등의 편의증진 보장에 관한 법률에 따르면, 장애인 등의 출입이 가능한 출입구는 통과 유효폭을 900 mm 이상으로 하고 출입구 전면 유효거리는 1,200 mm 이상으로 해야 한다(Fig. 2 참조). 복도의 유효폭도 1,200 m 이상이 되어야하기 때문에 기준에 따라 문을 열었을 때 복도 폭이 1,200 mm 이상이 되려면 문사이즈 1,000 mm, 복도폭 1,200 mm을 합계하여 최소 2,200 mm가 되어야한다.
(3) 지구단위계획과 층고
층고 설정의 경우 별도의 법규 제한사항은 존재하지 않아 지구단위계획을 참고하였다.
지구단위계획이란 도시를 계획하는 지역 중 일부를 지정하여 정부에서 임의로 환경 등을 보호하기 위해 설정하는 계획으로 용도나 시설의 제한을 두는 경우와 환경을 확보하고 미관 등의 개선을 위한 지침 등을 제공하는 경우가 있다.
건축물의 형태나 색채, 외벽의 재료 등에 제한을 두는 경우도 있고 1층의 높이를 지정하여 통일감 있는 연속된 경관을 유도하는 경우도 있는데 4.5 m 정도를 권장하는 경우가 많다12,13). 이에 따라 1층의 높이는 4.5 m로 하였다.
본 연구에서는 기계 환기를 위한 덕트가 천정에 설치 되어있는 것으로 하고 전기열원 히트펌프 메이커가 제공하는 스펙에 따라 보 하부 40 cm 덕트 공간 및 그 외 설비 설치 여유공간 20 cm를 포함해 천장고를 3.3 m로 결정하였다.
4.2 부위별 디테일 표준 치수 검토
(1) 내부 마감
내부 마감에는 다양한 방법이 있지만 소규모 상가의 특성상 입주 시 업종에 맞게 새로 인테리어 공사를 하는 것을 일반적이다. 본 연구에서는 공사비가 가장 저렴한 미장마감을 적용하기로 하였다.
국토교통부에서 발간하는 건축공사 표준시방서에는 부위별 모르타르 미장 마감에 대한 상세가 다음과 같이 설명되어 있다14). 이에 따르면 내벽 모르타르 바름 두께는 초벌 7 mm, 재벌 7 mm, 정벌 4 mm 총 18 mm이나 바탕면의 상태에 따라 10%의 오차가 가능하기 때문에 20 mm로 올림 하였다.
(2) 주차장 기둥 마감
주차구획 3대 폭인 7,500 mm + 기둥사이즈 600 mm+ 기둥 모르타르 마감 40 mm (20 mm× 2면)를 합계하면 8,140 mm의 기둥 간격이 만들어진다. 시공오차 등을 고려하고 치수 단위를 50 mm (5 cm) 단위로 조정하여 8,200 mm로 올림 하였다. 이 모듈을 기준으로 주차로 중간에 기둥이 세워지지 않게 정리한 결과는 Fig. 3과 같다.
지상 층 상가 폭의 X축 방향은 기둥 중심선인 8.2 m로 구성되며 Y축 방향 길이는 코어벽체 중심선에서 기둥 및 벽체가 0.3 m, 시멘트 몰탈 마감 0.02 m임을 고려하여 복도 폭 2.23 m로 설계할 경우 상가 한 모듈은 8.2 m ×10.05 m=82.41 m2로 계획된다. 이를 바탕으로 소규모 상가 단일 공간의 범위는 82 m2 (8,200 mm×10,050 mm)로 설정하였다. 문 사이즈는 역시 동 기준에 따라 통과 폭 900 mm를 확보하기 위해 실제 문사이즈 1,000 mm (문틀 제외)로 계획되었다.
상가 열부하 모델의 형태를 결정하기 위해 주차장법, 장애인법, 기둥 경간, 내부 마감, 부위별 각종 치수 등을 기존 문헌 및 법규를 통해 분석한 결과, 단위 표준 상가 공간의 표준 기둥 경간은 8.2 m, 마감 등을 고려한 상가 모듈은 8.2 m×10.05 m로 제안되었다. 지구단위계획 및 천정 속 설비 설치 공간을 고려해 층고는 4.5 m, 천정고 3.3 m로 제안되었다.
5. 상가 열부하 모델과 외피 성능
이전 섹션에서 정리한 내용을 기준으로 볼 때 소규모 상가를 구성하는 모 건물은 Fig. 4와 같이 구성될 수 있다. 상가건물의 특성상 주 도로에 면하는 부위가 정면이 될 가능성이 높고, 유닛의 전면이 높은 비율로 외기에 직접 면한 창임을 고려할 때 본 유닛 정면의 향은 냉방부하에 큰 영향을 미칠 것으로 분석된다. 이에 외기에 면하는 창의 비율과 정면의 향을 변수로 하여 표준 상가 공간의 냉방부하는 다양하게 구성될 필요가 있다. 정면을 남향으로 하는 상가 건물의 유닛은 창의 위치에 따라 1면이 창인 N, S타입과 2면이 창인 SE, SW, NE, NW타입 총 6개의 유닛으로 구성된다. 전면이 동-서로 배치된 경우를 추가하면 Table 1과 같이 총 12개의 유닛이 만들어질 수 있다.
Table 1
Classification of reference models according to the direction
| One side glass type | Two side glass type | ||
| N-S location | N type | NW type | NE type |
| S type | SW type | WE type | |
| E-W location | E type | EN type | ES type |
| W type | WS type | WN type | |
마지막으로 표준 상가 공간의 외피 명세를 결정하였다.
냉난방부하를 결정하는 외피의 요소는 대표적으로 (1) 벽체, 바닥, 지붕의 열관류율 (2) 창의 비율 (3) 창호의 태양열 취득률(SHGC) 세 가지로 구분 할 수 있다15).
1) 벽체, 바닥, 지붕의 열관류율은 건축물의 에너지절약설계기준 [별표1]의 값 중 그 기준이 가장 높은 중부1의 기준을 따르고 바닥은 지하층에 주차장이 있는 것으로 가정하였으므로 외기 간접으로 하였다. 지붕의 경우 상층에 상가가 있는 경우와 지붕이 있는 경우로 가정할 수 있으나 지붕이 외기에 직접 면하는 것으로 가정하였다.
2) 창의 면적비의 경우, 상가 건물의 특성상 투과 비율이 높은 쪽을 선호하는 것으로 조사되어, 바닥 마감 레벨부터 천정 마감 레벨까지는 투과성 부위인 창으로 설정하였다.
냉방부하에 큰 영향을 미치는 창호의 SHGC16)는 건축물의 에너지절약설계기준에서 사용하는 유리의 태양열 취득률 × 창틀계수(창틀의 종류 및 면적이 정해지지 않은 경우 0.9)를 적용하여 산출하였다. 건축물의 에너지절약설계기준에 따르면 비주거 건축물의 중부 1 기준에서 창의 열관류율을 만족시키는 최소값은 1.3 W/m2·K이다. 한국에너지공단에 등록된 4,885건의 창세트 데이터를 확인한 결과 창호 열관류율 값이 1.2 W/m2·K ~ 1.3 W/m2·K인 제품의 유리 사양은 24 mm 로이 복층유리로 아르곤 12 mm가 충진 된 제품이 제일 많았다17).
위의 내용을 종합하여 Table 2와 같이 외피의 성능을 결정하였다.
Table 2
Envelope information of the reference models
상가 열부하 모델의 외피 성능을 결정하기 위해 건축물의 에너지절약설계기준과 한국에너지공단의 통계 데이터 등을 활용하였고 이를 분석한 외피 열적 성능은 Table 2로 요약된다. 해당 공간의 주향과 외피에서 창의 비율은 부하계산에 큰 영향을 미치는 요인으로 본 상가 열부하 모델은 Fig. 4와 같이 12가지의 유닛으로 구분되어 제시되었다.
6. 결 론
본 연구는 소규모 상가 공간의 적정 열원 설비 용량을 산정하기 위한 선행 연구로 열원 설비 용량 산정의 대상이 되는 소규모 상가 열부하 모델을 구축하기 위해 관련 전문가의 자문 및 각종 법규 검토, 건축공사 표준 시방서 검토, 전문가 자문 등을 실시하였다.
이를 통해 기둥 경간은 8.2 m, 마감 등을 고려한 상가 모듈은 가로 세로 8.2 m×10.05 m, 층고는 4.5 m, 설비 설치 공간을 고려한 천정고 3.3 m의 단위 공간이 제안되었다. 이는 다시 공간의 주향 및 창 면적 비율에 따라 총 12가지의 타입으로 구분되었으며, 향후 연구에서 부하 계산을 위한 상가 열부하 모델로 제시될 예정이다.
본 12가지 타입별 열원 설비 용량은 KS C 9306의 자체 보정 열부하를 고려한 용량 산정 기준과 비교 분석될 예정이며 초기 투자비 절감 및 피크 부하시 에너지절감 정도에 대한 분석 연구가 함께 이뤄질 계획이다.






